Reference: 34b887

Offers over £325,000

Langley Road, Lower Penn, WV4

Inglenook, Langley Road, Lower Penn, Wolverhampton, WV4 4XX

bed 2 Bed
bath 2 Bath

Share this property

Property Description

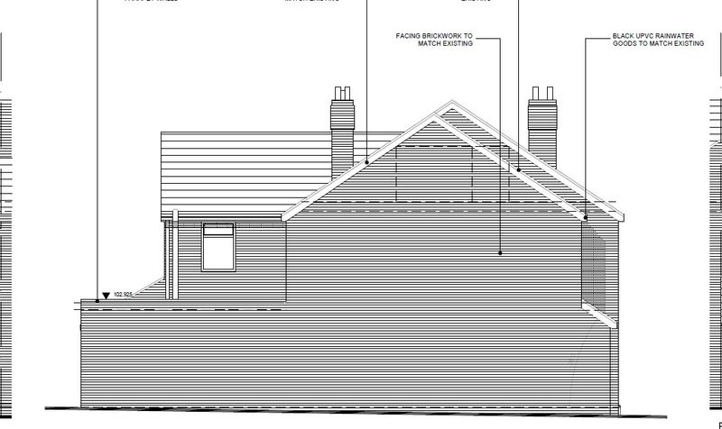
A modern two-bedroom semi-detached home offering exceptional extension potential, with planning permission already granted to transform the property into a substantial four/five-bedroom family residence. Detailed plans, prepared by the current owner, are available to view via the South Staffordshire planning portal, presenting a rare and exciting opportunity for buyers looking to create their long-term home.

Occupying a superb semi-rural position on the sought-after south-western outskirts of Wolverhampton, the property enjoys a wonderfully rural feel, surrounded by open fields, countryside views and an abundance of nearby nature walks. Set back from Langley Road beyond a service road, the home benefits from both privacy and tranquillity, while still remaining highly convenient.

One of the standout features is the exceptionally large rear garden, extending to over 400 feet in length and providing a total plot size of just over one third of an acre(estimated). The garden offers vast outdoor space ideal for families, entertaining or further development, and includes a brick-built barbecue area, perfect for summer use.

Despite its peaceful setting, the property is conveniently located within easy reach of local amenities, transport links and well-regarded schools, making it ideal for commuters and growing families alike.

The current accommodation briefly comprises an entrance hall, lounge, a modern ground floor bathroom, and an open-plan kitchen/diner benefiting from underfloor heating, along with a separate conservatory overlooking the garden. To the first floor are two well-proportioned double bedrooms and a generously sized family bathroom. Externally, the property offers off-road parking for multiple vehicles via a driveway to the front, as well as a garage.

Properties offering this level of potential, plot size and semi-rural positioning are rarely available. Early viewing is highly recommended to fully appreciate the opportunity on offer.

Property Features

  • MODERN TWO-BEDROOM SEMI-DETACHED HOME WITH SIGNIFICANT EXTENSION POTENTIAL
  • PLANNING PERMISSION GRANTED TO CREATE A FOUR/FIVE-BEDROOM FAMILY HOME
  • SUPERB SEMI-RURAL POSITION SURROUNDED BY OPEN FIELDS AND NATURE WALKS
  • SET BACK FROM LANGLEY ROAD BEYOND A SERVICE ROAD OFFERING PRIVACY
  • EXCEPTIONALLY LARGE REAR GARDEN EXTENDING OVER 400 FEET
  • APPROXIMATE TOTAL PLOT SIZE OF JUST OVER ONE THIRD OF AN ACRE
  • OFF-ROAD PARKING FOR MULTIPLE VEHICLES PLUS GARAGE
  • CONVENIENT ACCESS TO LOCAL AMENITIES, TRANSPORT LINKS AND WELL-REGARDED SCHOOLS